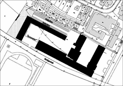
Das betroffene Bebauungsgebiet befindet sich im Stadtteil Freiburg-Haslach in der Ecke Eschholzstraße / Staudingerstraße:

Quelle: Stadt Freiburg
Rot - geplante zusätzliche Gebäude. Der südliche (untere) Gebäuderiegel wird den auf dem Übungshof generierten Schall voll in das nördlich gelegene Wohngebiet zurückwerfen und dadurch nochmals verstärken...
Seit der Bauausschuss-Sitzung vom 9. November 2011 schlägt das Baudezernat eine neue Gebäudestellung am selben Standort vor:
Quelle: Stadt Freiburg
Das Baudezernat meint, mit dieser Gebäudeanordnung sei die Belastung für die Anlieger reduziert. Um dies nachzuweisen, wird nun ein neues Lärmgutachten erstellt.
Durch diese neue Planung werden aber viele unserer ursprünglichen Bedenken nicht aus dem Wege geräumt und es werden neue Probleme generiert. Eine Auswahl haben wir in dieser Liste zusammengestellt.
Unsere bisherige Forderung bleibt daher bestehen: das Katastrophen-schutzzentrum gehört nicht mitten in ein Wohngebiet, sondern an einen peripheren Standort, so wie es in allen anderen Städten Deutschlands der Fall ist!
Aus der Vogelperspektive sieht man eindrücklich wie der momentan vorgesehene Standort 1 (rot) von Wohngebieten (grün), einem Seniorenheim (Erlenhof, EH) einem Kinderspielplatz (KS) und einer großen Schule (Staudinger) umgeben ist. Bei "2" (blau) und "3" (gelb) handelt es sich um bisher von der Stadt nur oberflächlich geprüften Standortalternativen.
Quelle: Google Earth