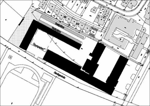
Auf der Sitzung des Bau- und Umlegungsausschusses am 9.11.2011 präsentierte das Baudezernat eine neue Stellung der Gebäude des geplanten Katastrophenschutzzentrum am unveränderten "Standort 1" (westlich der Neuen Feuerwache).

Um eine Entscheidung treffen zu können, beauftragte der Bauausschuss das Planungsamt auch diese Gebäudestellung gutachterlich prüfen zu lassen. Außerdem wurden Gutachten für den alternativen "Standort 3" bei eine optimierter Gebäudestellung gewünscht. Die Anwohner sollen auf keinen Fall mehr Immissionen an Lärm, Abgasen und Licht hinnehmen müssen als bisher...
Unsere wichtigste Einschätzung, dass ein Katastrophenschutz-zentrum nicht inmitten von Wohngebieten und in die unmittelbare Nähe einer Seniorenresidenz gehört, sondern an die Peripherie einer Stadt, hat sich dadurch nicht geändert. Entgegen den Darstellungen des Stadtplanungsamtes gibt es auch keinen zwingenden Grund, ein Katastrophenschutzzentrum direkt neben die Feuerwehr zu bauen.Unter dem Knopf "Einwände der IG Freiburg21" (siehe links oben) finden Sie unsere Argumente gegen den Standort 1, die auch die neue Gebäudestellung berücksichtigen.
Unter dem Knopf "Analyse Prof. Dr. Theweleit" finden Sie eine Analyse des renomierten Sozialwissenschaft